| Aanbieder | Strobbe Mobility Solutions Bvba |
| Doel | Essential cookies enable basic functions and are necessary for the proper functioning of the website. |
| Privacyverklaring | https://woehr.de/de/datenschutz.html |
| Namen | PHPSESSID, csrf_contao_csrf_token, csrf_https-contao_csrf_token |
| Levensduur | When ending the browser session. |
Victoria One / Melbourne, Australië / MULTIPARKER 740
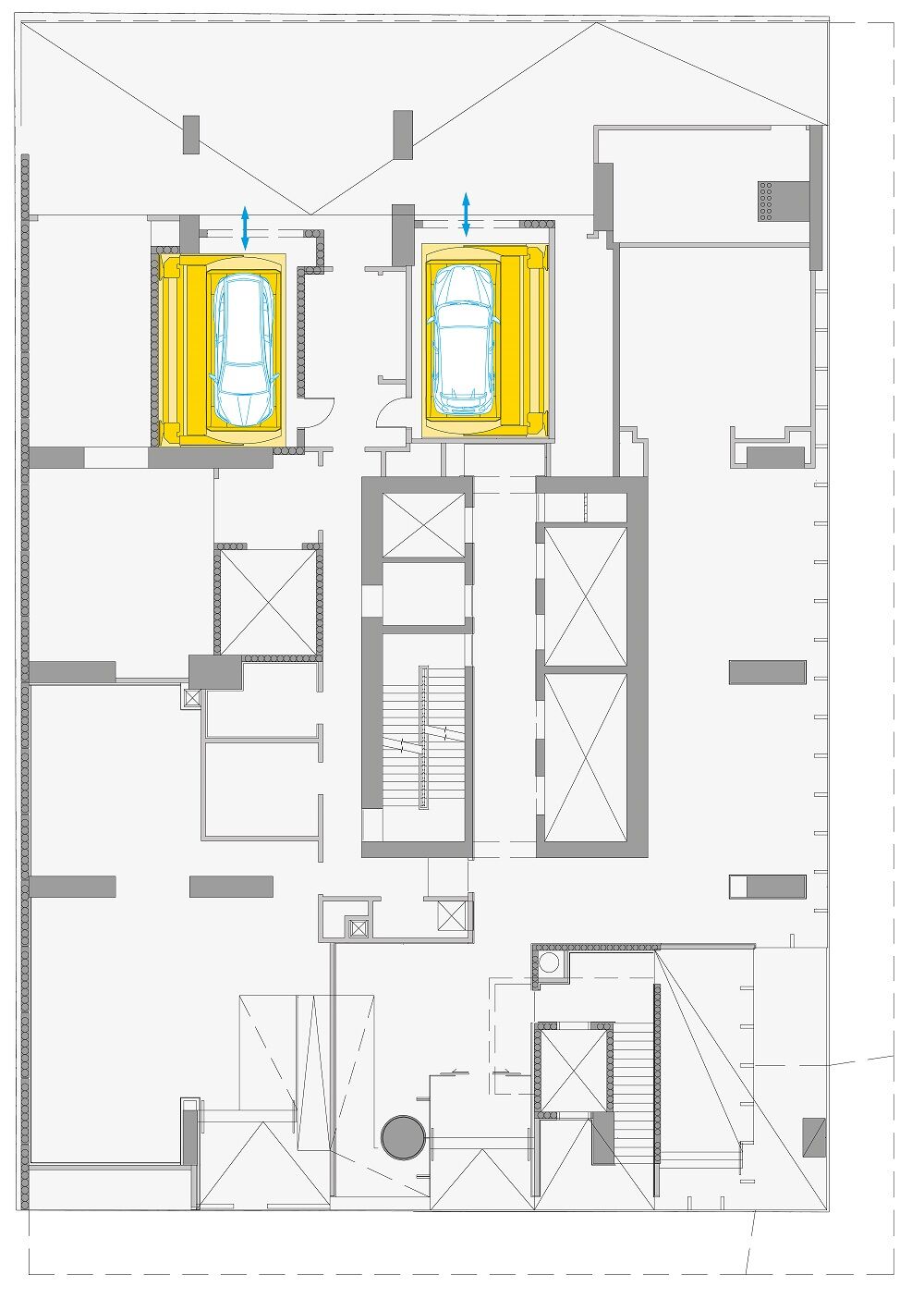
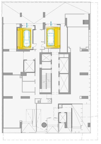
WÖHR Multiparker 740 in de Skytower Victoria One - ruimtebesparing in het hoogste woongebouw in het hart van het Central Business District in Melbourne
Architect: Elenberg Fraser Architects
Parkeersysteem: WÖHR Multiparker 740
Ruimtebesparing in het hoogste woongebouw in het hart van het Central Business District in Melbourne
Het hoogste woongebouw, en meteen zesde in de rij van hoogste gebouwen van de stad, werd gepland door Elenberg Fraser Architects, die al verschillende wolkenkrabbers in de hoofdstad van de staat Victoria optrok. De bouw ging van start in 2014 en staat symbool voor het sculpturale en energie-efficiënte ontwerp waar de architecten bekend om staan. De gevels van het gebouw brengen de ventilatie en verlichting in balans en hebben een grote impact op de vermindering van het energieverbruik. De gebruikte materialen zijn geïnspireerd op de omringende vegetatie en de elementen aarde, rotsen en water.
De blikvanger van de wolkenkrabber: Ons parkeersysteem, dat 30 - 47 parkeerfuncties kan uitvoeren met twee transfercabines. De Multiparker 740 stapelt auto's met hoogtes tussen 160 en 200 cm op 11 niveaus. De totale hoogte van het stalgedeelte bedraagt ong. 25 meter, gerekend vanaf ong. 12 meter boven het grondniveau. De parkeerprocedures worden bediend met een RFID-chip op het bedieningspaneel dat zich bij de transferzone bevindt.
PROJECTSPECIFICATIES:
- WÖHR Multiparker 740
- 2 transferzones met draaiplatform
- 11 parkeerniveaus
- Bediening via RFID-chip
- Voertuiglengte max. 525 cm
- Voertuighoogte max. 200 cm
- Voertuigbreedte max. 220 cm
- Totale parkeerruimte ong. 450 m²
- Oppervlakte per parkeerplaats ong. 2,8 m²
- Parkeercapaciteit 30 - 47 auto's/u.